︎
Inicio
Correa 1920
Amenabar
Warnes
Laprida
Zapiola
Cafe crespin
Lote 99
Washington
Beccar
Ph en olivos
Ph en Villa Urquiza
Cocina Altamira
Casa Casuarinas
Casa Campo
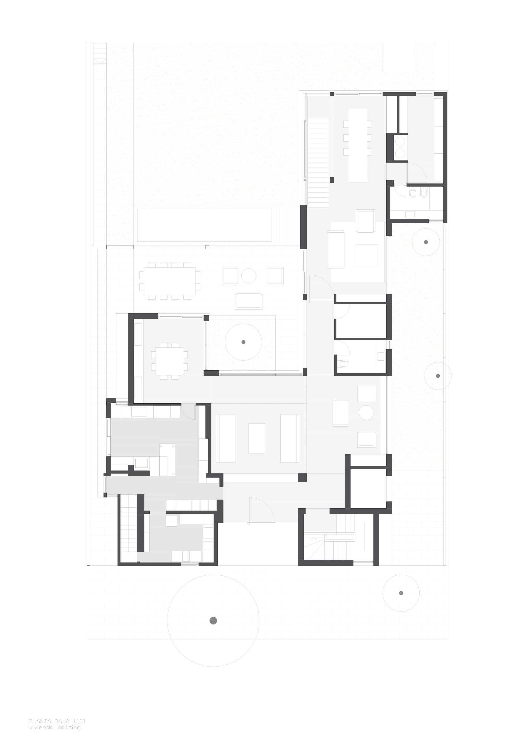
Casa Boating
Casa Los Ombues
Casa
Lote 77
Ampliación L8
Ampliación Las Victorias
Reforma Newman
Cocina Altamira
Casa Las Lomas
Club House El Atardecer
Casa Tigre
Stars TV
Casa Barranca
Residencial Vintage
Comercial Vintage
Urbanizaciones
descargar
CV
Information
Instagram
Reforma y Ampliación
San Isidro - 2014
Con Juan Carosi
Mark
Running on Cargo